Skip to content
  • (403) 554-8414
  • team@calgaryexperts.com
  • Connect
    • Email
    • X
    • Facebook
    • LinkedIn
    • Instagram
Connect
The Penley McNaughton Team RE/MAX House of Real Estate
  • The Penley McNaughton Team
  • My Office RE/MAX House of Real Estate
  • (403) 554-8414
  • team@calgaryexperts.com
The Penley McNaughton Team

The Penley McNaughton Team

With over 2000 homes SOLD!
We Are the Right Choice For Your Real Estate Needs.

Skip to content
  • Home
  • About
    • Testimonials
    • Meet the Team
    • Global Marketing Agent
    • Luxury Marketing Institute
    • Cross Canada Referrals
    • The Children’s Miracle Network
  • Featured Listings
    • Featured Listings
    • Recent Sales
    • Global Listings
  • Property Search
    • Northeast Communities
    • Northwest Communities
    • Southeast Communities
    • Southwest Communities
  • Communities
    • Mount Pleasant
    • Parkdale
    • West Hillhurst
    • Silver Springs
    • Sunnyside
  • Buy
    • Buyer’s Guide
    • Mortgage Calculator
    • Ultimate Source to Buying and Selling Real Estate
  • Sell
    • Seller’s Guide
    • Ultimate Source to Buying and Selling Real Estate
  • Newsletter
    • Blog
  • Resources
    • Real Estate
      • Canadian Real Estate Association
      • Mortgage Terminology
      • Moving Checklist
      • Lawyer – Bill LeClair
    • Services
      • Canada Post
      • Canada Mortgage & Housing Corporation
      • Calgary Board of Education
      • Bridgeland Schools and Services
    • Rental Housing and Properties
      • Information for Landlords
      • Information for Tenants
    • Relocation
      • Welcome to Calgary
      • Calgary Police Service Cime Mapping Website
      • Calgaryarea.com
      • Area Vibes
      • Workpolis
      • Map of Communities in Calgary
      • Federation of Calgary Communities
      • WalkScore
      • City of Calgary Careers
The Penley McNaughton Team

The Penley McNaughton Team

With over 2000 homes SOLD!
We Are the Right Choice For Your Real Estate Needs.

Sold

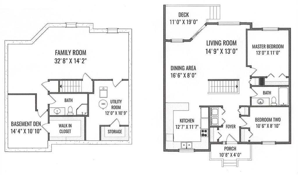
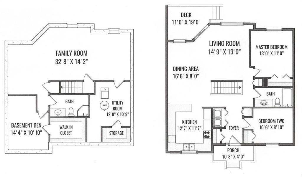
76 Deer Ridge Close SE

Deer Ridge – Calgary, AB

43
  • 76 Deer Ridge Close SE
  • $299,900
  • 2 bedrooms
  • 2 bathrooms
  • 1,019 sqft
1 of 43
Courtesy of Seamus Logue of Re/Max First
  • Details

  • List Price $299,900
  • Style Bungalow
  • Bedrooms 2
  • Bathrooms 2
  • Year Built 1990
  • Age 33
  • Floor Space 1,019 sqft
  • Condo Fees $316 / Monthly
  • Features Landscaped, Level, Near Public Transit, Near Shopping Center
  • Address 76 Deer Ridge Close SE, Calgary, AB, T2J 7C2

About

Welcome to Deer Valley Villas. A well Managed 50+ Adult Villa. Welcoming Small Pets. Great location within the community – quiet and secluded yard. 1,019 sqft plus 964 sqft Fully Finished lower level. 2 bedrms and 2 bathrms. Central Air. One of the more modern open floor plans, lots of natural light with morning and afternoon flowing in. Spacious kitchen with front facing window over sink. Greenspace and mature trees Park like setting. Multitude of birds at the bird feeder year round. Located across from Walmart & Co-op. Close to Fish creek Park – Walk your Grandkids to Simcoe Lake. Active Clubhouse includes pool tables, shuffleboard & a party rm with kitchen. All this and Great Neighbors.

Listing provided courtesy of Pillar 9. Disclaimer: The information contained in this listing has not been verified by RE/MAX House of Real Estate and should be verified by the buyer.

Contact

The Penley McNaughton Team
  • A featured listing of
    The Penley McNaughton Team
  • My Office RE/MAX House of Real Estate
  • Mobile (403) 554-8414
  • Email team@calgaryexperts.com

Community

Mortgage calculator

Connect

PHONE | 403-554-8414

EMAIL | team@calgaryexperts.com

       

Follow us!

Our Office

RE/MAX House of Real Estate
4034 - 16th Street SW
Calgary, AB T2T 4H4

RE/MAX House of Real Estate — 4034 - 16th Street SW Calgary, AB T2T 4H4 — 403-554-8414
© 2026 The Penley McNaughton Team
Home / C4241609
Data is supplied by Pillar 9™ MLS® System. Pillar 9™ is the owner of the copyright in its MLS® System. Data is deemed reliable but is not guaranteed accurate by Pillar 9™. The trademarks MLS®, Multiple Listing Service® and the associated logos are owned by The Canadian Real Estate Association (CREA) and identify the quality of services provided by real estate professionals who are members of CREA. Used under license. Listing data last updated 2026-04-12T01:14:51Z.
Powered by Avenue
The growth engine for driven real estate professionals.